Skip to main content

Bosco Verdé

Modern Boutique Living in Yeroskipou, Cyprus

Estimated Completion Date: April 2027

A New Standard of Living

A unique boutique residential complex nestled beside a lush pine grove, just steps away from the charming center of Yeroskipou.
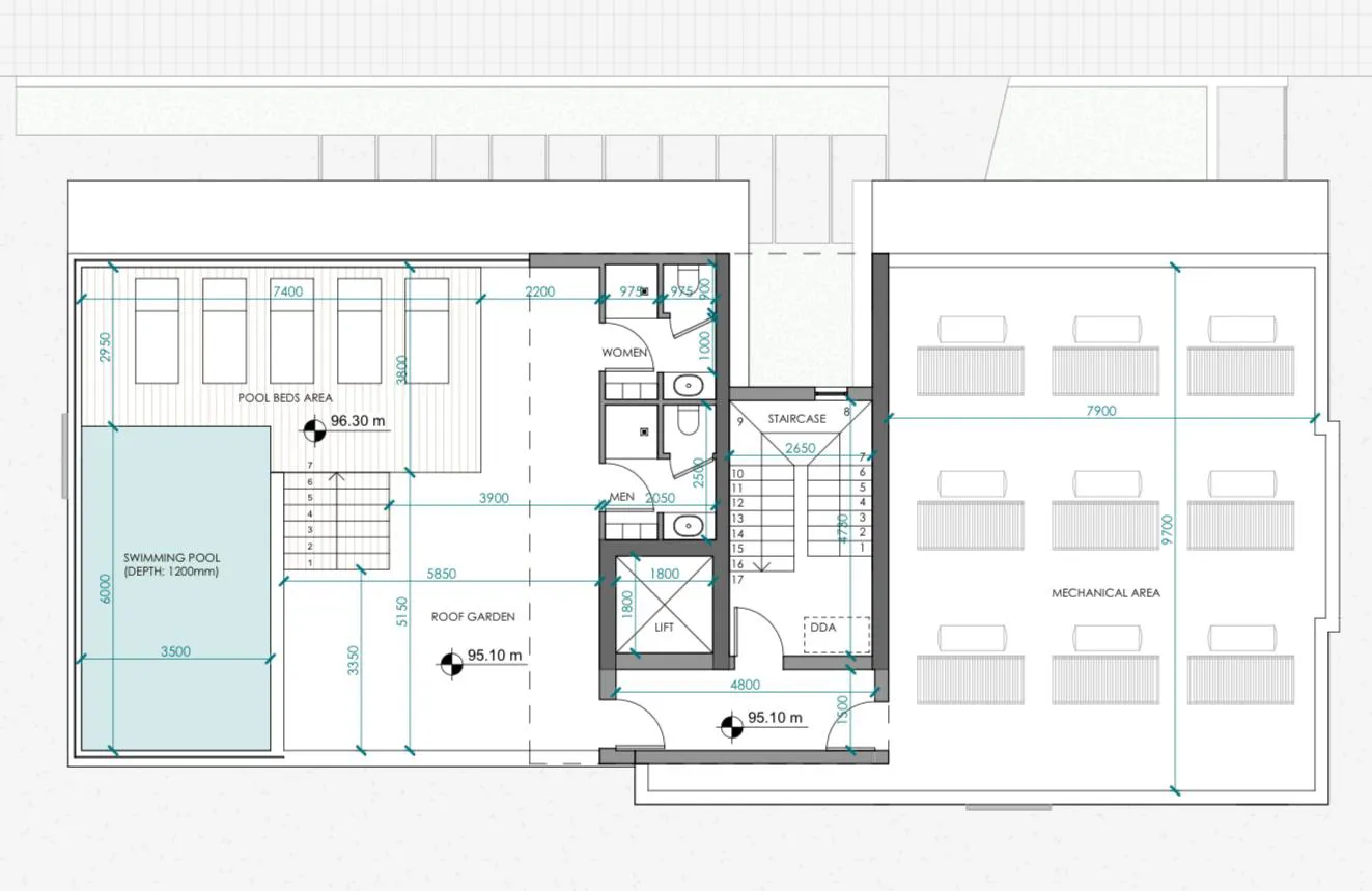
This project offers a thoughtfully designed living experience – from a shared rooftop with a heated pool and panoramic sea views to an ideal location in the heart of an up-and-coming area that blends nature, culture, and full accessibility.

Affordable Luxury

About The Project

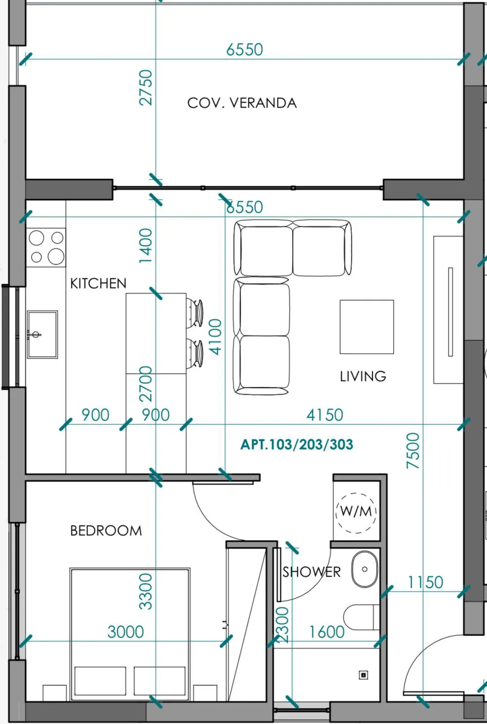
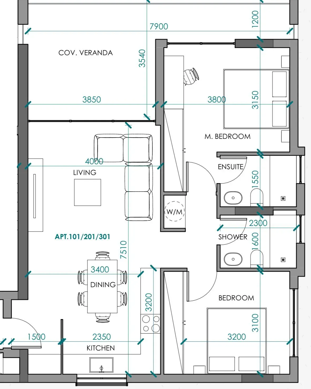
Bosco Verdé is an exclusive three-story boutique building offering just nine thoughtfully designed residences: studios, one-bedroom, and two-bedroom apartments.
The project embraces a clean, modern aesthetic with minimalist lines and expansive windows that flood each home with natural light.
Each apartment includes a covered parking space and a private storage unit on the ground floor, ensuring maximum convenience for residents.

Adjacent to a lush pine grove and a charming playground, Bosco Verde offers a rare sense of nature and tranquility — right at the heart of a growing, vibrant neighborhood.
Two-bedroom units enjoy direct views of the pine grove, providing a unique sense of privacy and open landscape.

On the rooftop, a heated swimming pool invites residents to relax while taking in stunning panoramic views of the Mediterranean Sea.
An advanced solar energy system will power the building’s common areas, promoting sustainable living.

Location

  • A walking distance from local taverns, cafes, and shops
  • 5 minutes from the sandy beaches and fancy beach bars of Yeroskipou
  • 10 minutes from Paphos airport, city center, and university
  • Only 5 minutes from an International School
  • Just 3 minutes from the highway exit
  • Only 40 minutes from Limassol

Turnkey Advantages

01

Fully Furnished and Move-In Ready

Each apartment is delivered fully equipped with a complete furniture and appliances package, including air conditioning, electrical appliances, movable furniture, linens, towels, kitchenware, and cutlery.

Just bring your suitcase.

02

Guaranteed Return and Property Management

Professional property management by the developer’s trusted company, including maintenance, leasing, and client services.
A guaranteed return of 6% for two years — with no management fees.
Buyers are free to choose their own management company or self-manage if they prefer.

03

Mortgage & Financing Assistance

Support with mortgage applications through local banks, helping buyers secure competitive financing options.

04

Residency Guidance

Full assistance with PR applications for non-EU buyers.

Let’s Talk Today.